Inicio
Nosotros
Empresa
Staff
Servicios
Instalaciones
Soluciones Compactas
Pequeñas Instalaciones
Grandes Instalaciones
Aguas Domésticas
Aguas Industriales
Potabilización
Clientes
Argentina
Europa - América Central y África
Industriales
Urbanas
Noticias
Contacto
Volver
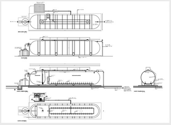
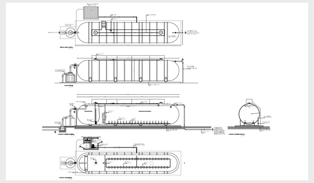
EDAR - REACTOR BIOLÓGICO FANGOS ACTIVADOS Y DESINFECCIÓN FINAL - VIALE PCIA. DE ENTRE RIOS.
COMITENTE:
MUNICIPALIDAD DE VIALE
POBLACIÓN A SERVIR:
500 HABITANTES
AÑO:
2018
El proyecto en imágenes