Inicio
Nosotros
Empresa
Staff
Servicios
Instalaciones
Soluciones Compactas
Pequeñas Instalaciones
Grandes Instalaciones
Aguas Domésticas
Aguas Industriales
Potabilización
Clientes
Argentina
Europa - América Central y África
Industriales
Urbanas
Noticias
Contacto
Volver
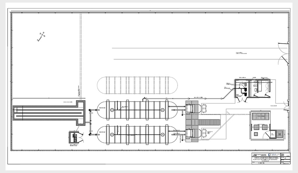
EDAR - ÁREA LOGÍSTICA INDUSTRIAL DE ALVEAR - PCIA. DE SANTA FE.
COMITENTE:
ALIA S.A.
POBLACIÓN A SERVIR:
1920 HABITANTES
AÑO:
2018
El proyecto en imágenes